Energiezuinige (label B) halfopen 4 slpk. gezinswoning
Fritz Vinckelaan 77, 8400 Oostende
Ref. 7182367
Beschrijving
Deze verkoopprijs is een 'STARTPRIJS'.
De eigenaar behoudt zich het recht om, wanneer 1 of meerdere bieders de startprijs of hoger hebben geboden en er een verschil is, kleiner dan € 2.500, deze bieders uit te nodigen om onder gesloten omslag een tweede, éénmalig bod te laten uitbrengen. De eigenaar heeft het recht om het aanbod niet te aanvaarden.
Welkom in deze charmante halfopen gezinswoning aan de Fritz Vinckelaan in Bredene, net over de grens met Oostende. De stijlvolle witte gevel en verzorgde uitstraling maken meteen indruk, en ook binnenin ontdek je een warme en lichtrijke thuis.
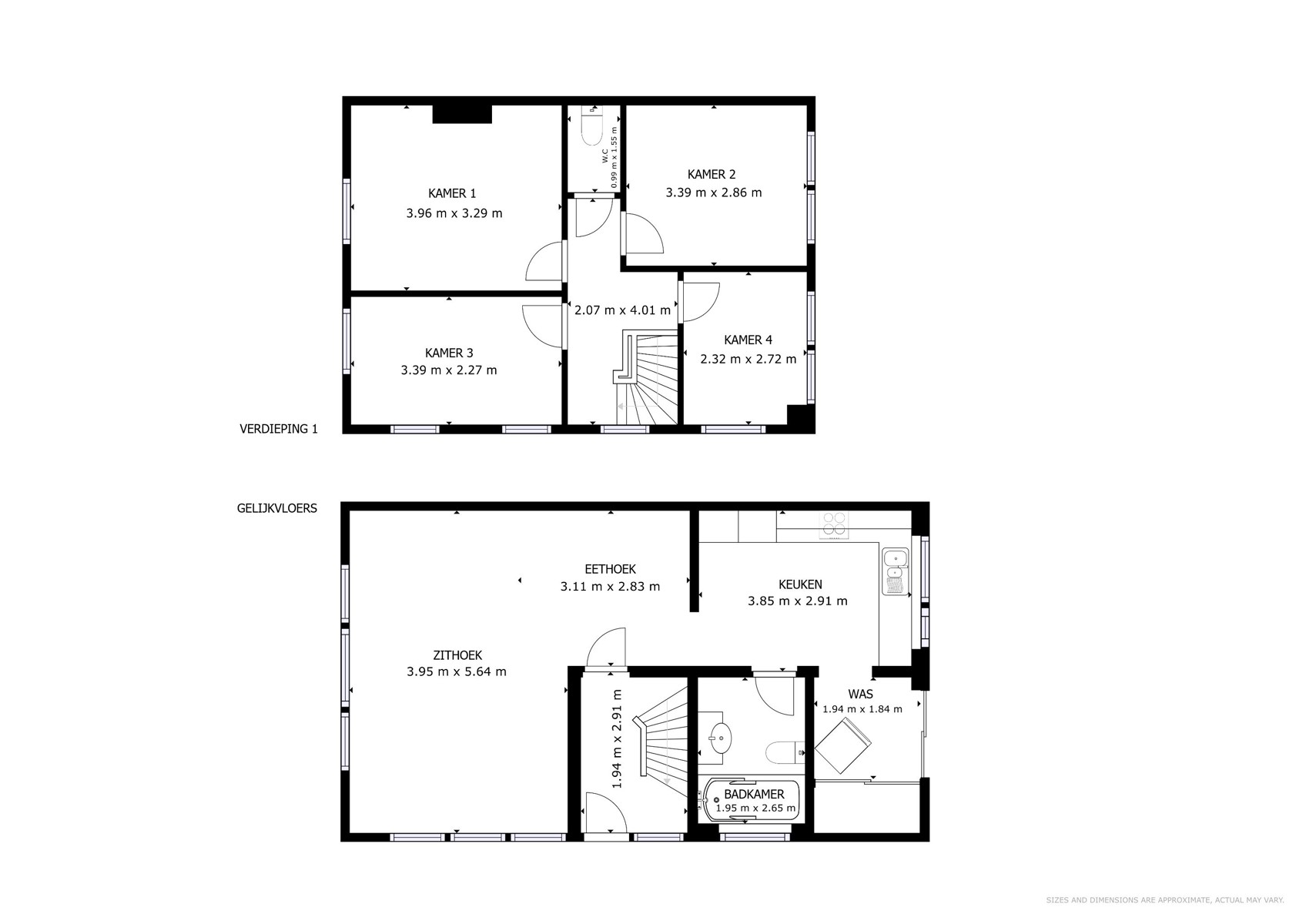
Met een bewoonbare oppervlakte van 164 m² op een westgericht perceel van 198 m² biedt deze woning verrassend veel ruimte. De royale L-vormige leefruimte met gezellige zithoek en eetplaats vloeit naadloos over in de volledig uitgeruste keuken, die uitkijkt op het zonneterras met loungehoek. De benedenverdieping beschikt verder over een ruime badkamer met bad/douchecombinatie, wastafel en toilet, een praktische wasplaats én een zeer ruime garage. Buiten zorgt de brede oprit voor extra parkeergelegenheid.
Op de eerste verdieping vind je vier slaapkamers terug, waarvan één momenteel dienstdoet als bureau – ideaal voor thuiswerk of studie. Extra opbergruimte is er in de grote zolder.
Deze woning combineert comfort en functionaliteit met enkele sterke troeven: een gunstig EPC-label B, asbestveiligheid, rolluiken en een uitstekende ligging op wandelafstand van het centrum van Bredene met alle voorzieningen vlakbij.
Instapklaar, goed onderhouden en met een zonnige tuin die uitnodigt tot ontspannen: hier woon je zorgeloos én met ruimte voor het hele gezin.
Benieuwd naar deze woning?
EPC-label B: energiezuinig! Asbestveilig
Centrum Bredene op wandelafstand, alle winkels en voorzieningen vlakbij
Zeer goed onderhouden en instapklaar
Westgerichte terras met lounge
Zeer ruime oprit en garage
360° view
Kenmerken
4 slaapkamer(s)
1 Badkamer(s)
2 Toilet(ten)
Parkeren
Terras
Riolering
Telefoonbekabeling
Electriciteit
Dubbele beglazing
Algemene Informatie
- Totale oppervlakte
- 198 m²
- Bewoonbare opp.
- 164 m²
- Bouwjaar
- 1973
- Renovatiejaar
- 2010
- Kadastraal inkomen
- € 765
- Slaapkamer 1
- 13 m²
- Slaapkamer 2
- 10 m²
- Slaapkamer 3
- 8 m²
- Slaapkamer 4
- 6 m²
- Terras 1
- 40 m²
- Woonkamer
- 22 m²
- Eetkamer
- 8 m²
- Keuken
- 10 m²
- Bureau
- 6 m²
Energieprestaties
- EPC categorie

- EPC
- 166 kWh/m²
- EPC referentie
- 2025-0003629210-RES-1
Stedenbouwkundige Informatie
- Overstromingsgevoelig
- Nee
- Elektriciteitskeuring beschikbaar
- Ja, niet conform
- Bouwvergunning
- Ja
- Voorkooprecht
- Nee
- Verkavelingsvergunning
- Nee
- Bodemattest
- Ja
- Asbestattest
- Ja, 20/06/2025
- G-score
- D

- P-score
- D

Ligging
De woning in de Fritz Vinckelaan 77 geniet van een centrale ligging in Bredene. Op wandelafstand vind je het bruisende centrum met winkels, scholen en horeca. Ook het strand en de duinen liggen vlakbij, ideaal voor ontspanning in de natuur. Dankzij de vlotte verbindingen met Oostende en de E40 combineer je hier de rust van een residentiële buurt met een uitstekende bereikbaarheid.





























